Property Auction House and RICS Registered Valuer

Next Auction:
16th Apr 2026

Current Lots
Regulated by RICS
 

Lot 11

Land Adjacent To 21 Denmark Street, Diss, Norfolk

Photo of Land Adjacent To 21 Denmark Street, Diss, Norfolk
Photo of Land Adjacent To 21 Denmark Street, Diss, Norfolk
Photo of Land Adjacent To 21 Denmark Street, Diss, Norfolk
Photo of Land Adjacent To 21 Denmark Street, Diss, Norfolk
Guide Price: *£120,000

MAP

 

Lot 11

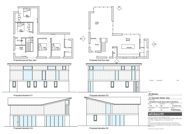
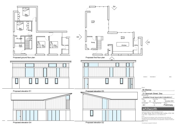
This development site is situated within the heart of Diss within a short walk of the town centre and within easy reach of Diss Station that is less than a mile distant. The area is full of historic buildings and surrounded by attractive countryside. The area is well served by bus routes, schools and recreational facilities. Good road links connect to Norwich and also access to London and the ports. The property sits on a large site of approximately 0.32 acres. The site is a building plot that benefits from planning permission to erect a four bedroom detached dwelling of approximately 175 sm in size. The permission was granted under reference 2020/2463 or alternative reference PP-09373593 for demolition of former shed/workshop and erection 1no. dwelling with associated parking, gardens and amenity spaces



Ful details are contained within the legal pack. We are advised that the planning has been implemented and the site is sold with full vacant possession.

ACCOMMODATION

Large site of approximately 0.32 acres

TENURE

Freehold

LOCAL AUTHORITY & TAX RATING

South Norfolk Council

VIEWING TIMES

Open site for inspection at any time. Please be courteous to neighbours.

Enquiry Form

Pound sign icon

Price Information

*Guides are provided as an indication of each seller's minimum expectation. They are not necessarily figures which a property will sell for and may change at any time prior to the auction. Each property will be offered subject to a Reserve (a figure below which the Auctioneer cannot sell the property) which we expect will be set within the Guide Range or no more than 10% above a single figure Guide.

Plus sign icon

Additional Fees

Please note that the following additional fees will apply to the purchase of your property:

  • Buyers Premium of £600 inclusive of VAT
  • Other fees as listed within the Special Conditions of Sale that form part of the legal pack which is made available to you prior to auction. You will be expected to sign this document as well as the Sales Memorandum at the time of purchase.
  • Stamp Duty - rates easily available on-line
  • Your solicitor fees and any survey fees
  • Insurance - it is your responsibility from the date of exchange to insure the property purchased.

Online Property Auctions Overview

Find out the Current Market Value of your Property

Request a FREE market appraisal today!

Full Market Appraisal Instant Valuation