Property Auction House and RICS Registered Valuer

Next Auction:
23/10/2025

Current Lots
Regulated by RICS
 

Lot 5

31-33 High Street, Haverfordwest, Pembrokeshire

Featured in our 13th February 2019 auction

Photo of 31-33 High Street, Haverfordwest, Pembrokeshire
Photo of 31-33 High Street, Haverfordwest, Pembrokeshire
Photo of 31-33 High Street, Haverfordwest, Pembrokeshire
Photo of 31-33 High Street, Haverfordwest, Pembrokeshire
No longer available

MAP

 

Lot 5

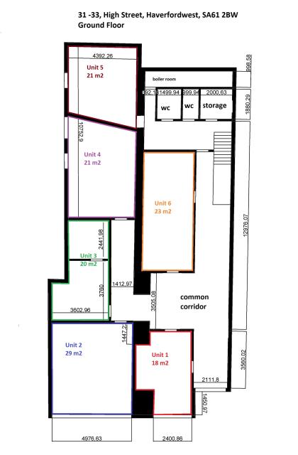
This substantial freehold commercial building is divided into 17 units with investment income consisting of 2 shopfront units on the ground floor and 15 office units over the ground, first and second floors. The premises is situated in a prime location within the town centre of Haverfordwest which is an attractive and ancient county town of Pembrokeshire. The property has been recently renovated and benefits from a new roof. 11 out of the 17 units are rented and are currently generating £1,410.00 PCM income (£16,920.00 P.A). The property also has scope to convert the upper floors into residential units while keeping the ground floor as a commercial unit subject to obtaining any relevant planning permission. Haverfordwest Railway station is 0.4 miles away and good road links serve the area including the A40 & M4 into London. The town centre is vibrant with many local businesses, banks and an award winning Farmers Market open daily. This opportunity will be of interest to investors and developers.



Currently, the following units are let:



1 & 6 - £300 PCM total

2 & 3 - £400 PCM total

7 & 12 - £160 PCM total

8 & 9 - £200 PCM total

15 & 16 - £200 PCM total

17 - £150 PCM



Current Total: £1,410.00 PCM (£16,920.00 P.A)



Total potential income when fully let is estimated to be £30-32k P.A

ACCOMMODATION

Freehold commercial building divided into 2 retail shopfront units on the ground floor and 15 office units over the ground, first & second floors. There is also a loft room on the left side of the building (31) which is technically a third floor - approx 30 Sq.M which is currently being used as storage.

The building is Approx 8,072 Sq.ft (750 Sq.M)

TENURE

Freehold

LOCAL AUTHORITY & TAX RATING

Pembrokeshire County Council - 01437 764551
Rateable Value For Business Rates:

Unit 1 - £3,200
Unit 2 - £5,200
Unit 3 - £1,750
Unit 4 - £1,825
Unit 5 - £1,825
Unit 6 - £2,000
Unit 7 - £1,475
Unit 8 - £2,500
Unit 9 - £2,450
Unit 10 - £2,500
Unit 11 - £2,500
Unit 12 - £2,450
Unit 13 - £2,350
Unit 14 - £1,575
Unit 15 - £2,350
Unit 16 - £2,475
Unit 17 - £2,000

Total: £40,425

NOTE: Business rates are not payable on any vacant units that have a rateable value below £2,600.00

VIEWING TIMES

By appointment through the Auctioneers

Enquiry Form

Pound sign icon

Price Information

*Guides are provided as an indication of each seller's minimum expectation. They are not necessarily figures which a property will sell for and may change at any time prior to the auction. Each property will be offered subject to a Reserve (a figure below which the Auctioneer cannot sell the property) which we expect will be set within the Guide Range or no more than 10% above a single figure Guide.

Plus sign icon

Additional Fees

Please note that the following additional fees will apply to the purchase of your property:

  • Buyers Premium of £600 inclusive of VAT
  • Other fees as listed within the Special Conditions of Sale that form part of the legal pack which is made available to you prior to auction. You will be expected to sign this document as well as the Sales Memorandum at the time of purchase.
  • Stamp Duty - rates easily available on-line
  • Your solicitor fees and any survey fees
  • Insurance - it is your responsibility from the date of exchange to insure the property purchased.

Online Property Auctions Overview

Find out the Current Market Value of your Property

Request a FREE market appraisal today!

Full Market Appraisal Instant Valuation