Property Auction House and RICS Registered Valuer

Next Auction:
16th Apr 2026

Current Lots
Regulated by RICS
By order of the Executors

Lot 7

Gwynfryn, New Street, Rhosllanerchrugog, Wrexham

Featured in our 26th February 2026 auction

Photo of Gwynfryn, New Street, Rhosllanerchrugog, Wrexham
Photo of Gwynfryn, New Street, Rhosllanerchrugog, Wrexham
Photo of Gwynfryn, New Street, Rhosllanerchrugog, Wrexham
Photo of Gwynfryn, New Street, Rhosllanerchrugog, Wrexham
Photo of Gwynfryn, New Street, Rhosllanerchrugog, Wrexham
Photo of Gwynfryn, New Street, Rhosllanerchrugog, Wrexham
Photo of Gwynfryn, New Street, Rhosllanerchrugog, Wrexham
Refer to Auctioneer

MAP

By order of the Executors

Lot 7

The property is located approximately four miles from Wrexham and within two miles of the A483 city by-pass. This provides access to Chester that is approximately 16 miles distant and the north west motorway network. The village is served by local shops, schools and local facilities. The dwelling is a two bedroom detached house with three reception rooms. The property benefits from gas fired central heating and double glazing throughout. This dwelling has been generally well maintained and is presented in good order throughout. This lot is sold with full vacant possession and will be of interest to investment buyers and owner occupiers.



PLEASE NOTE THAT THIS LOT IS NOT OPEN TO PRE-AUCTION OFFERS AND WILL NOT BE SOLD PRIOR TO AUCTION UNDER ANY CIRCUMSTANCES. ANY INTENDING PURCHASER MUST REGISTER TO BID IN ORDER TO PURCHASE. WE REMIND ALL PARTIES THAT BIDDING REGISTRATION CLOSES AT 3pm THE DAY BEFORE THE AUCTION.

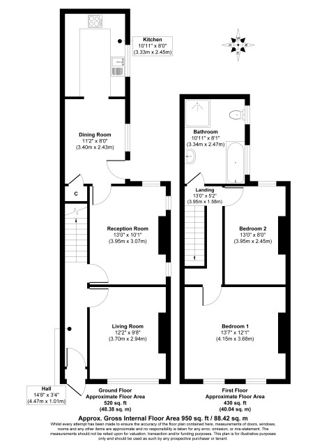
ACCOMMODATION

Front Reception, Rear Reception, Breakfast Room, Kitchen, Landing, Bedroom One, Bedroom Two, Bathroom, garden.

TENURE

Freehold

LOCAL AUTHORITY & TAX RATING

Wrexham
Council tax Band C
EPC Band D

VIEWING TIMES

Saturday 7th February @ 11.30 - 12
Wednesday 11th February @ 11.30 - 12

Enquiry Form

Pound sign icon

Price Information

*Guides are provided as an indication of each seller's minimum expectation. They are not necessarily figures which a property will sell for and may change at any time prior to the auction. Each property will be offered subject to a Reserve (a figure below which the Auctioneer cannot sell the property) which we expect will be set within the Guide Range or no more than 10% above a single figure Guide.

Plus sign icon

Additional Fees

Please note that the following additional fees will apply to the purchase of your property:

  • Buyers Premium of £600 inclusive of VAT
  • Other fees as listed within the Special Conditions of Sale that form part of the legal pack which is made available to you prior to auction. You will be expected to sign this document as well as the Sales Memorandum at the time of purchase.
  • Stamp Duty - rates easily available on-line
  • Your solicitor fees and any survey fees
  • Insurance - it is your responsibility from the date of exchange to insure the property purchased.

Floorplans

Floorplan of Gwynfryn, New Street, Rhosllanerchrugog, Wrexham

Online Property Auctions Overview

Find out the Current Market Value of your Property

Request a FREE market appraisal today!

Full Market Appraisal Instant Valuation