Property Auction House and RICS Registered Valuer

Next Auction:
16th Apr 2026

Current Lots
Regulated by RICS
By Order of a Major Housing Association

Lot 10

172 Lee Street, Horley, Surrey

Featured in our 13th February 2025 auction

Photo of 172 Lee Street, Horley, Surrey
Photo of 172 Lee Street, Horley, Surrey
Photo of 172 Lee Street, Horley, Surrey
Photo of 172 Lee Street, Horley, Surrey
Photo of 172 Lee Street, Horley, Surrey
Photo of 172 Lee Street, Horley, Surrey
Photo of 172 Lee Street, Horley, Surrey
Photo of 172 Lee Street, Horley, Surrey
Photo of 172 Lee Street, Horley, Surrey
No longer available

MAP

By Order of a Major Housing Association

Lot 10

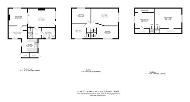
This detached dwelling can be found in Whitmore Waye set back from Lee Street. The house is Grade II listed and offers four/five bedrooms, with spacious living accommodation. It is situated within easy reach of the centre of Horley with its shopping facilities and main line rail services. London Gatwick Airport is within three miles as is the M23 Motorway that connects to the M25 London orbital Motorway. The house itself has gas fired central heating and gardens to all sides. The dwelling is in need of updating and modernisation throughout and is sold with vacant possession. There is a garage on site although this is in very poor order. This dwelling will be of interest to investment buyers and owner/occupiers.



PLEASE NOTE THAT THIS LOT IS NOT OPEN TO PRE-AUCTION OFFERS AND WILL NOT BE SOLD PRIOR TO AUCTION UNDER ANY CIRCUMSTANCES. ANY INTENDING PURCHASER MUST REGISTER TO BID IN ORDER TO PURCHASE. WE REMIND ALL PARTIES THAT BIDDING REGISTRATION CLOSES AT 3pm THE DAY BEFORE THE AUCTION.

ACCOMMODATION

Kitchen, Breakfast Room, Dining Room, Lounge, Bathroom, First Floor Landing, Bedroom one, Bedroom two, Bedroom three, Bedroom Four, Loft Room, Gardens to all Four Sides

TENURE

Freehold

LOCAL AUTHORITY & TAX RATING

Reigate and Banstead
Council Tax Band E
EPC Band D

VIEWING TIMES

Saturday 25th January @ 11.30 - 12 noon
Thursday 30th January @ 11.30 - 12 noon
Wednesday 5th February @12 - 12.30pm
PLEASE NOTE THAT ALTHOUGH THE ADDRESS IS 172 LEE STREET, THE PROPERTY IS ACCESSED VIA WHITMORE WAYE.

Enquiry Form

Pound sign icon

Price Information

*Guides are provided as an indication of each seller's minimum expectation. They are not necessarily figures which a property will sell for and may change at any time prior to the auction. Each property will be offered subject to a Reserve (a figure below which the Auctioneer cannot sell the property) which we expect will be set within the Guide Range or no more than 10% above a single figure Guide.

Plus sign icon

Additional Fees

Please note that the following additional fees will apply to the purchase of your property:

  • Buyers Premium of £600 inclusive of VAT
  • Other fees as listed within the Special Conditions of Sale that form part of the legal pack which is made available to you prior to auction. You will be expected to sign this document as well as the Sales Memorandum at the time of purchase.
  • Stamp Duty - rates easily available on-line
  • Your solicitor fees and any survey fees
  • Insurance - it is your responsibility from the date of exchange to insure the property purchased.

Floorplans

Floorplan of 172 Lee Street, Horley, Surrey

Online Property Auctions Overview

Find out the Current Market Value of your Property

Request a FREE market appraisal today!

Full Market Appraisal Instant Valuation